Добро пожаловать на http://vipplan.ru

Випплан Красногорск - это тысячи проектов домов в нашем каталоге!

Вы всегда сможете найти для себя проект дома вашей мечты! Даже если этого не случилось, мы готовы в любую минуту предложить проект индивидуального дома.

Забыли пароль?
Вы еще не регистрировались?

Перейдите по ссылке ниже на страницу регистрации.

Регистрация...

Внимание!!!

В проектную документацию могут быть внесены изменения любой сложности, в соответствии в Вашими пожеланиями!

Полезные статьи

Закладка фундамента дома

Закладка фундамента является одним из первых и самых главных этапов строительства любого дома. Все здание опирается именно на эту часть конструкции. Поэтому главная функция фундамента заключается в том, чтобы нести на себе весь вес несущих стен и кровли, а значит предотвращать появление перекоса стен, проседание сооружения, что неизбежно приводит к образованию трещин в стенах здания и в фундаменте....

Плиты перекрытий

Железобетонные плиты очень широко используются в строительстве. При помощи них возводят как промышленные объекты так жилые. Железобетонные плиты перекрытия являются главной частью любого строительного объекта вне зависимости от этажности....

Проекты домов и коттеджей > Каталог проектов домов > Проект компактного двухэтажного дома с террасой Vg2416

Проект компактного двухэтажного дома с террасой Vg2416

Проект компактного двухэтажного дома с террасой
Зарегистрируйтесь

Проект № Vg2416


Техническое описание
Общая площадь: 141.02 м2
Жилая площадь: 77.51 м2
Высота здания: 9.15 м
Размеры дома: 11.35м×8.76м
Кол-во комнат: 4
Цокольный этаж: нет
Гараж: нет
Мансарда: нет

Kонструкция
Фундамент: Ленточный монолитный ж/б
Перекрытия: Монолитное ж/б
Материал стен: Керамоблок

Архитектурный раздел
Конструктивный раздел
Инженерный раздел
Смета на строительство
АР+КР - 52 000 (Со скидкой 20%)
АР+КР+ИР - 101 350 (Со скидкой 50%)
Проекта двухэтажного жилого дома с размерами здания 11,35 x 8,76 м. Фундамент - ленточный монолитный ж/б. Наружные стены - керамический блок, технологический зазор и отделка облицовочным кирпичом. Внутренние стены: керамический блок. Перегородки - забутовочный кирпич. Пол первого этажа - пол по грунту. Межэтажное перекрытие - монолитное ж/б. Крыша - четырехскатная. Кровля - металлочерепица. Окна - металлопластиковые. Лестница - монолитная ж/б.
Генплан застройки участка / Паспорт проекта 7000 руб / 10000 руб
Инженерный раздел (полный) 49350 руб (70500 руб)
Смета на строительство 26438 руб (35250 руб)
Теплотехнический расчет материалов стен Бесплатно
Стоимость проекта со незначительнми изменениями 61450 руб
Стоимость проекта со средними изменениями* 72100 руб
Стоимость проекта со значительными изменениями** 74900 руб

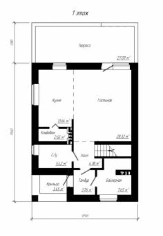
План первого этажа


Тамбур - 3,76 кв м
Холл - 4,38 кв м
Бойлерная - 7,65 кв м
Гостиная - 28,32 кв м
Кухня - 13,64 кв м
Кладовая - 2,65 кв м
С/у - 5,42 кв м

Проект компактного двухэтажного дома с террасой

Проект компактного двухэтажного дома с террасой

План второго этажа


Холл - 7,39 кв м
С/у - 8,04 кв м
Спальня - 16,04 кв м
Спальня - 16,01 кв м
Спальня - 17,14 кв м
Гардероб - 4,49 кв м
Проект компактного двухэтажного дома с террасой Проект компактного двухэтажного дома с террасой Проект компактного двухэтажного дома с террасой Проект компактного двухэтажного дома с террасой

Модификации проектов

Внесение изменений и привязка к участку строительства

В любой из проектов от компании VIPplan - Красногорск по вашему желанию могут быть внесены изменения в материалы стен, материалы наружной отделки дома, а также будет произведена адаптация проекта под конкретный регион строительства (с учетом грунтов региона, геологических особенностей вашего участка и местных климатических условий) - БЕСПЛАТНО !!! (кроме проектов со скидкой и проектов наших партнеров).

Любой из проектов, размещенных на сайте krasnogorsk.vipplan.ru мы можем выполнить из требуемых вам строительных материалов: ячеистый бетон (газобетон, пеноблок), керамоблок, кирпич, шлакоблок, бетонный блок, дерево (брус, клееный брус), каркасная технология (деревянный каркас, металлокаркас (ЛСТК)).

Фасад дома и его наружную отделку так же возможно выполнить с применением различных облицовочных материалов: структурной штукатурки, (с утеплителем и без), сайдингом (пластиковый или металлосайдинг), фиброплитами, кирпича.

 
6 Избранные
проекты

Доставка проектов по России: Москва (Московская область), Санкт-Петербург (Ленинградская область), Краснодар, Ростов-на-Дону, Ставрополь, Сочи, Волгоград, Новосибирск, Белгород, Брянск, Воронеж, Саратов, Хабаровск, Астрахань, Нальчик, Владикавказ, Екатеринбург, Тюмень, Самара, Нижний Новгород, Казань, Пермь, Уфа, Челябинск, Красноярск, Ханты-Мансийск, Иркутск, Курган, Оренбург, Омск, Томск, Барнаул, Новокузнецк, Кемерово, Абакан, Чита, Якутск, Южно-Сахалинск, Петропавловск-Камчатский и страны ближнего зарубежья: Белоруссия, Украина, Казахстан